beat365在线唯一官网国际会议中心拟对金码大厦(A座)6层603,605,606,10层1005-1012房间公开招租,欢迎符合招租要求的单位参加投标。
一、招租内容
1.招租项目名称:beat365在线唯一官网国际会议中心招租项目
2.招租项目编号:CAU-ICC-2025-03
3.招租项目性质:公开招租
4.招租期限:5年
5.招租项目基本情况介绍:
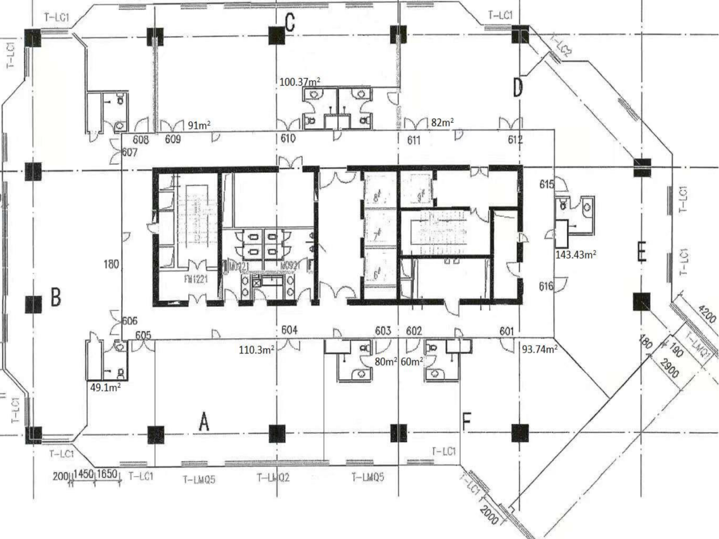
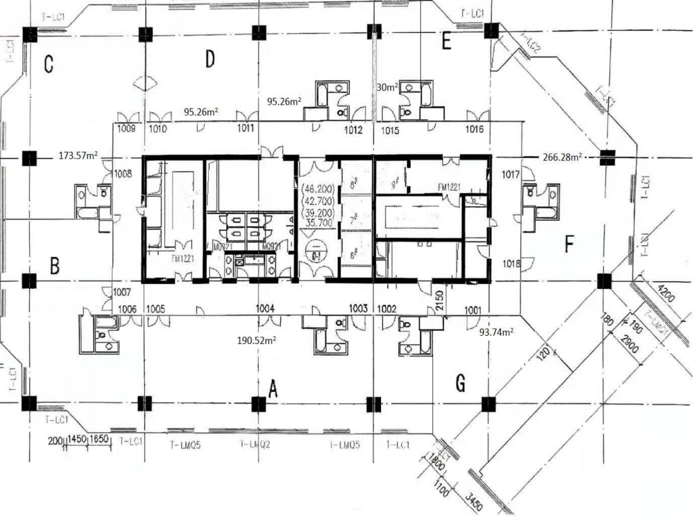
(1)beat365在线唯一官网国际会议中心金码大厦(A座)6层603,605,606,10层1005-1012,地址:北京市海淀区学清路甲38号;
(2)招租项目信息
| 建筑名称 | 房间号 | 建筑面积 | 招租属性 |
|---|---|---|---|
| 金码大厦(A座) | 603 | 95.26 |
出租 |
| 金码大厦(A座) | 605 | 144.14 | 出租 |
| 金码大厦(A座) | 606 | 120.00 | 出租 |
| 金码大厦(A座) | 1005-1012 | 689.42 | 出租 |
(3)6层603、605、606平面位置图

(4)10层1005-1012平面位置图

二、需要落实的管理办法
1.遵守《beat365在线唯一官网公用房出租管理办法》等文件的规定开展招租工作;
2.运行类型为beat365在线唯一官网的产学研服务配套;
3.属于以往合作的优质商户,在同等条件下优先考虑。
三、报名时间、报名方式及文件获取
1.报名时间:2025年10月24日起至10月27日上午12:00前;
2.报名方式:填写附件《报名登记表》,并将报名所需材料(投标人加盖公章的营业执照和授权委托书及授权代表身份证复印件(盖公章)相关资料)扫描件发送至联系邮箱;
3.招租文件获取:报名获通过后,通过邮箱发送招租文件;
4.未能登记报名并获得招租文件的投标将视为无效投标而被拒绝,投标资格不得转让。
四、投标文件接收地点
报名后五个工作日内(双休日及法定节假日除外)提交投标文件,以邮寄时间为准;
地点:北京市海淀区学清路甲38号beat365在线唯一官网国际会议中心金码大厦(A座)五层综合办公室。
五、结果通知方式
请详见“beat365在线唯一官网官网”发布的招租结果公告。
六、联系方式
联系人:侯美羽
电 话:18813072549
邮 箱:2022531003@cau.edu.cn





